Újépítésű, belső szintes családi otthon Dorog szívében

1103 Nyomtatás Ajánlás Facebook

Modern elegancia, átgondolt részletek és pilisi panoráma – újépítésű otthon Dorogon

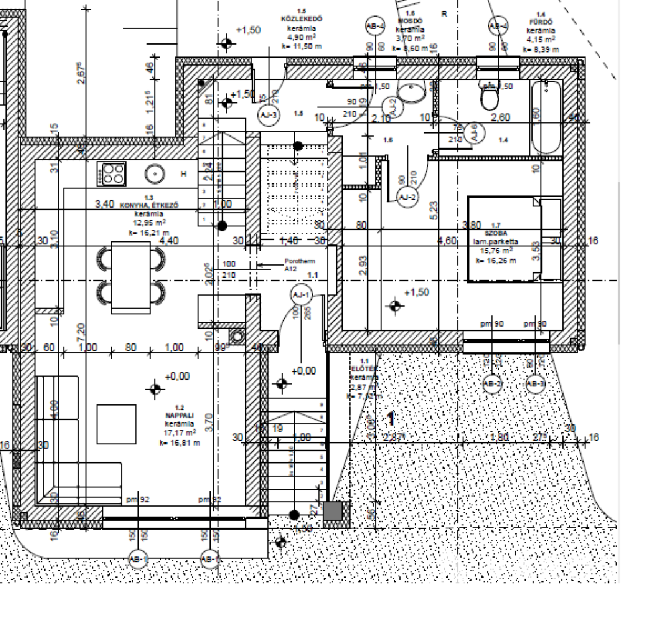
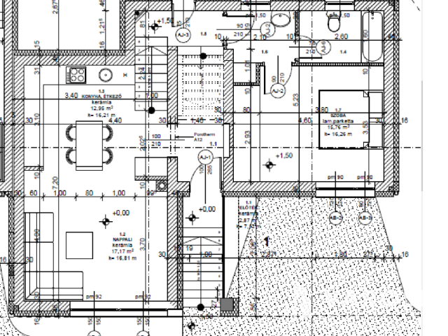
Dorog egyik legkedveltebb, központhoz közeli részén kínáljuk megvételre ezt a 2023-ban épült, háromlakásos társasházban található, belső szintes, prémium kivitelezésű otthont. Az ingatlan már első pillantásra is visszafogott eleganciát sugároz: letisztult homlokzat, minőségi burkolatok és rendezett környezet fogadja az érkezőt, ahol a saját gépkocsi-tárolón keresztül, elektromos garázskapun át akár közvetlenül az épületen belül is beléphetünk a lakásba.

A belső terek kialakítása a mai igényeket szem előtt tartva történt. A tágas, világos nappali–konyha–étkező egység ideális központja a mindennapoknak, ahol a nagy nyílászárók természetes fénnyel töltik meg a teret, miközben a Pilis hegység látványa szinte a lakás részévé válik. A kandalló kialakításának lehetősége előkészítésre került, így a meghitt hangulat tovább fokozható egy későbbi döntéssel.

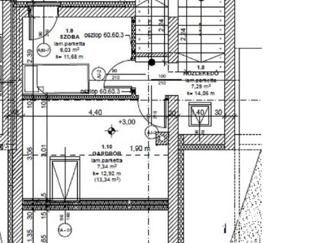
A 118 m²-es alapterületen három kényelmes hálószoba, kamra, valamint két külön mellékhelyiség biztosítja a családi élet zavartalan működését. A fürdőszoba tágas, igényesen burkolt, természetes fénnyel rendelkező tér, ahol a minőség és az időtálló megjelenés tökéletes egyensúlyban van. A teljes lakásban padlófűtés gondoskodik az egyenletes hőérzetről, a háromrétegű nyílászárók, valamint a 15 cm vastag grafitos hőszigetelés pedig a gazdaságos fenntarthatóságot szolgálják.

A műszaki tartalom a mindennapi kényelmet és a jövőbeni lehetőségeket egyaránt szem előtt tartja: kiépített központi porszívó rendszer előkészítés, 3×16 amperes elektromos hálózat, a konyhában és a garázsban 380 voltos csatlakozás, valamint gázkiállás is rendelkezésre áll. A Velux tetőablakok tovább növelik a felső szint fényérzetét és térélményét.

Az ingatlanhoz tartozó, 230 m²-es saját telekrész kiváló lehetőséget kínál pihenésre, kert kialakítására vagy családi programokra, mindezt nyugodt környezetben, mégis kiváló infrastruktúrával. Dorog városközpontja néhány percen belül elérhető, Esztergom mindössze 10 km-re található, Budapest pedig körülbelül 40 km-re, akár az Esztergom–Budapest vasútvonalat választva is, amely Dorogról nagyjából egyórás utazást jelent.

Az ingatlan azonnal birtokba vehető, hitelezhető, és többféle állami támogatás – CSOK, CSOK Plusz, Babaváró hitel – is igénybe vehető rá, így ideális választás mindazok számára, akik újépítésű, minőségi otthont keresnek, kompromisszumok nélkül. Nem tömegmegoldásról van szó: a kivitelezés során gondosan válogatott anyagok kerültek felhasználásra, miközben az ár kialakításánál fontos szempont maradt az elérhetőség.

Ez az otthon azoknak szól, akik értékelik a csendet, a panorámát, a modern műszaki megoldásokat és a valódi minőséget – egy helyen.
Várom megtisztelő érdeklődő hívását!

Slájer Tamás
PRÉMIUM

Slájer Tamás

9 éve a Városi Ingatlaniroda tagja
Ingatlanértékesítő
Tinnye
+36 (20) 363 5186
Észrevétel a hirdetéssel kapcsolatban
Egy ingatlanos naplója